Prawidłowe zaprojektowanie i wykonanie zbrojenia pod słup konstrukcyjny to jeden z najważniejszych etapów budowy, który bezpośrednio wpływa na bezpieczeństwo i trwałość całej konstrukcji. W tym kompleksowym poradniku przedstawię krok po kroku, jak podejść do tego zadania, bazując na normach i sprawdzonych praktykach budowlanych. Moim celem jest przekazanie wiedzy, która pozwoli uniknąć kosztownych błędów i zapewni stabilność Twojego domu na lata.
Prawidłowe zbrojenie pod słupem klucz do stabilności i bezpieczeństwa konstrukcji
- Zbrojenie pod słupem przenosi skupione obciążenia na grunt, zapobiegając przebiciu fundamentu, osiadaniu i powstawaniu rys.
- Jest obligatoryjne, gdy obciążenia przekraczają nośność betonu, a jego parametry zawsze określa projekt budowlany.
- Kluczowe materiały to stal zbrojeniowa klasy A-IIIN (np. B500B), pręty główne (ø12-20mm) i strzemiona (min. ø6mm).
- Należy bezwzględnie przestrzegać minimalnej otuliny betonu (min. 50mm w fundamentach), rozstawu prętów i strzemion oraz długości zakładu (40-60x średnica pręta).
- Najczęstsze błędy to niewłaściwa otulina, rozstaw, zbyt krótki zakład oraz użycie stali niezgodnej z projektem.
- Zgodność z normą PN-EN 1992-1-1 (Eurokod 2) jest podstawą bezpiecznej i trwałej konstrukcji.
Zbrojenie pod słupem: fundament bezpieczeństwa Twojego domu
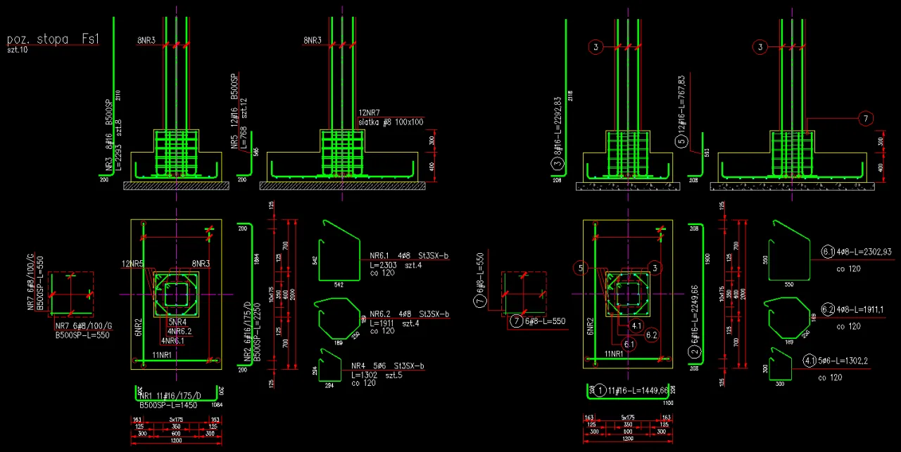
Zbrojenie pod słupem, najczęściej w formie stopy lub płyty fundamentowej, to nic innego jak strategiczne połączenie stali i betonu, tworzące żelbet. Jego podstawową funkcją jest bezpieczne przeniesienie dużych, skupionych obciążeń ze słupa na znacznie większą powierzchnię gruntu. Dzięki temu zapobiegamy zjawiskom takim jak przebicie fundamentu przez słup, nadmierne osiadanie konstrukcji czy powstawanie niekontrolowanych rys. Beton, jak wiemy, doskonale radzi sobie z siłami ściskającymi, natomiast stal zbrojeniowa jest niezastąpiona w przenoszeniu sił rozciągających, które nieuchronnie pojawiają się w fundamencie pod obciążeniem. To właśnie ta synergia sprawia, że zbrojenie jest tak kluczowe dla stabilności i długowieczności każdego budynku.
Kiedy projekt budowlany bezwzględnie wymaga zbrojenia stopy fundamentowej?
Zbrojenie stopy fundamentowej pod słupem jest w zasadzie standardem w nowoczesnym budownictwie i jest bezwzględnie wymagane, gdy obciążenia przekazywane przez słup przekraczają nośność samego betonu. Jest to sytuacja typowa dla większości budynków, od jednorodzinnych po obiekty komercyjne. Poza tym, zbrojenie jest obligatoryjne w przypadku słupów posadowionych na płytach lub stopach fundamentowych o ograniczonej grubości, zazwyczaj poniżej 50-60 cm, a także przy występowaniu dużych sił pionowych, przekraczających często 500-700 kN. Co najważniejsze, to nie my decydujemy o konieczności zbrojenia czy jego parametrach zawsze jest ono szczegółowo określone w projekcie budowlanym, na podstawie precyzyjnych obliczeń statyczno-wytrzymałościowych wykonanych przez konstruktora. Ignorowanie tych wskazań to prosta droga do poważnych problemów.Konsekwencje błędów wykonawczych: co grozi, gdy zbrojenie jest wykonane nieprawidłowo?
Jako inżynier z doświadczeniem, widziałem niestety wiele przykładów, gdzie błędy w wykonaniu zbrojenia miały poważne konsekwencje. Nieprawidłowo wykonane zbrojenie to nie tylko drobna usterka estetyczna, ale realne zagrożenie dla bezpieczeństwa całej konstrukcji. Może ono prowadzić do osłabienia nośności elementu, co objawia się pęknięciami w fundamencie, a następnie w ścianach i stropach. W skrajnych przypadkach, niewystarczające zbrojenie może spowodować przebicie fundamentu przez słup, nadmierne, nierównomierne osiadanie budynku, a nawet, co najgorsze, katastrofę budowlaną. Dlatego tak ważne jest, aby każdy etap prac, od projektowania po wykonanie, był traktowany z najwyższą starannością i zgodnie z obowiązującymi normami.

Materiały i parametry techniczne: co musisz wiedzieć o zbrojeniu?
Jaką stal zbrojeniową wybrać? Charakterystyka i oznaczenia zgodne z normami
Wybór odpowiedniej stali zbrojeniowej to podstawa. Najczęściej stosowaną klasą w budownictwie jest stal A-IIIN, oznaczana np. jako B500B. Charakteryzuje się ona wysoką granicą plastyczności, co oznacza, że jest w stanie przenieść duże obciążenia rozciągające bez trwałego odkształcenia. Zgodnie z normą PN-EN 1992-1-1 (Eurokod 2), stal musi spełniać określone wymagania wytrzymałościowe. Co równie ważne, przed betonowaniem stal musi być wolna od luźnej rdzy nalotowej, oleju, błota czy innych zanieczyszczeń, które mogłyby pogorszyć jej przyczepność do betonu. Czysta stal to gwarancja prawidłowej współpracy z betonem i pełnej nośności elementu.
Pręty główne a strzemiona: jakie średnice są kluczowe dla nośności?
W zbrojeniu pod słupem wyróżniamy dwa główne typy prętów, pełniące różne, ale równie ważne funkcje. Pręty główne (podłużne) to te, które biegną wzdłuż elementu i odpowiadają za przenoszenie głównych sił rozciągających i ściskających. W zależności od obciążeń i wymiarów słupa, ich typowe średnice w budownictwie jednorodzinnym i komercyjnym to ø12 mm, ø16 mm, a nawet ø20 mm.
Z kolei strzemiona (zbrojenie poprzeczne) mają za zadanie stabilizować pręty główne, zapobiegając ich wyboczeniu pod obciążeniem. Dodatkowo, strzemiona przenoszą siły ścinające, które również występują w fundamencie. Wykonuje się je z prętów o mniejszej średnicy, zazwyczaj minimum ø6 mm, a ich kształt i rozstaw są precyzyjnie określone w projekcie.
Otulina, rozstaw, zakotwienie rozszyfrowujemy kluczowe pojęcia z projektu konstrukcyjnego
- Otulina betonu: To nic innego jak minimalna grubość warstwy betonu, która otacza zbrojenie z każdej strony. Jej znaczenie jest fundamentalne chroni stal przed korozją (wilgoć, agresywne środowisko) oraz przed wysoką temperaturą w przypadku pożaru. W przypadku fundamentów, gdzie zbrojenie ma kontakt z gruntem, minimalna grubość otuliny wynosi zazwyczaj min. 50 mm. Aby ją zapewnić, bezwzględnie należy stosować specjalne podkładki lub dystanse z tworzywa sztucznego bądź betonu, które utrzymują pręty w odpowiedniej pozycji podczas betonowania.
- Rozstaw prętów: Odnosi się do odległości między poszczególnymi prętami zbrojeniowymi. W przypadku prętów głównych, minimalna odległość między nimi musi wynosić co najmniej średnicę pręta lub 20 mm, aby beton mógł swobodnie otoczyć każdy pręt i zapewnić prawidłową przyczepność. Rozstaw strzemion standardowo nie powinien przekraczać 400 mm, jednak w strefach przypodporowych i węzłach, gdzie występują większe siły ścinające, często jest on zagęszczany do ≤ 150 mm, zgodnie z projektem.
- Długość zakładu i zakotwienia: Te pojęcia określają, na jakiej długości muszą na siebie zachodzić łączone pręty (zakład) lub jak głęboko pręt musi być osadzony w betonie (zakotwienie), aby zapewnić ciągłość przenoszenia sił. To kluczowe, gdy musimy łączyć pręty ze względu na ich standardową długość. Typowe wartości długości zakładu wynoszą 40-60-krotność średnicy pręta. Zbyt krótki zakład to jeden z najczęstszych i najbardziej niebezpiecznych błędów, prowadzący do osłabienia konstrukcji.
Pręty startowe: jak prawidłowo przygotować połączenie fundamentu ze słupem?
Pręty startowe, często nazywane "starterami", to nic innego jak pręty zbrojeniowe wypuszczane z fundamentu (stopy, ławy), które mają za zadanie zapewnić ciągłość zbrojenia i prawidłowe połączenie z docelowym słupem. Są one kluczowe dla integralności konstrukcji, ponieważ to one przenoszą siły ze słupa na fundament i odwrotnie. Powinny wystawać ponad powierzchnię betonu na długość zakładu, która często wynosi około 50 cm, ale zawsze musi być zgodna z projektem. Prawidłowe ułożenie i zakotwienie starterów w fundamencie to gwarancja, że słup będzie stabilnie połączony z resztą konstrukcji.
Instrukcja krok po kroku: jak prawidłowo wykonać zbrojenie stopy fundamentowej pod słup?
Krok 1: Analiza projektu i przygotowanie stanowiska pracy
Zanim wbijemy pierwszy pręt, dokładna analiza projektu konstrukcyjnego jest absolutnie kluczowa. Musimy zrozumieć wymiary stopy, średnice prętów głównych i strzemion, ich rozstawy, wymaganą grubość otuliny oraz wszelkie szczegóły dotyczące połączeń i zakotwień. To nie jest moment na domysły! Następnie przygotowujemy stanowisko pracy, gromadząc niezbędne narzędzia i materiały: drut wiązałkowy, cęgi, miarę, poziomnicę, a przede wszystkim atestowane dystanse (podkładki) do zbrojenia. Czyste i zorganizowane miejsce pracy to podstawa efektywności i precyzji.Krok 2: Przygotowanie i gięcie prętów precyzja to podstawa
Kolejnym etapem jest przygotowanie prętów zbrojeniowych. Obejmuje to cięcie prętów na wymiar i ich gięcie zgodnie z kształtem i wymiarami określonymi w projekcie. To zadanie wymaga dużej precyzji. Każde odchylenie od projektu, czy to w długości, czy w kącie gięcia, może negatywnie wpłynąć na prawidłowe działanie zbrojenia i jego nośność. Pamiętajmy, że pręty muszą być gięte na odpowiednich giętarkach, aby uniknąć uszkodzenia ich struktury.
Krok 3: Montaż szkieletu zbrojeniowego techniki wiązania prętów i strzemion
Po przygotowaniu pojedynczych prętów przystępujemy do montażu całego szkieletu zbrojeniowego. Pręty główne łączymy ze strzemionami za pomocą drutu wiązałkowego. Ważne jest, aby wiązania były solidne i stabilne, ale niekoniecznie bardzo mocne ich głównym zadaniem jest utrzymanie prawidłowego rozstawu prętów i kształtu szkieletu podczas transportu i betonowania. Stosuje się różne techniki wiązania, np. pojedyncze, krzyżowe, w zależności od potrzeb, ale zawsze należy dbać o to, by szkielet był sztywny i nie odkształcał się pod własnym ciężarem.
Krok 4: Ustawienie zbrojenia w szalunku rola i rozmieszczenie dystansów
Gotowy szkielet zbrojeniowy należy teraz prawidłowo umieścić w szalunku. To etap, w którym kluczową rolę odgrywają dystanse (podkładki). Rozmieszczamy je równomiernie pod zbrojeniem oraz po bokach, aby zapewnić wymaganą grubość otuliny betonu ze wszystkich stron. Dystanse muszą być atestowane i wykonane z materiału, który nie będzie negatywnie oddziaływał na beton (np. tworzywo sztuczne, beton). Ich prawidłowe rozmieszczenie gwarantuje, że stal będzie odpowiednio chroniona przed korozją i ogniem, a całe zbrojenie będzie pracować zgodnie z projektem.
Krok 5: Finalna kontrola przed betonowaniem co musi sprawdzić kierownik budowy?
Zanim wylejemy beton, niezbędna jest finalna kontrola zbrojenia. To moment, w którym kierownik budowy (lub inspektor nadzoru) musi zatwierdzić wykonane prace. Pamiętaj, że to on bierze odpowiedzialność za zgodność z projektem. Oto kluczowe punkty kontroli, które zawsze sprawdzam:- Średnice prętów: Czy zgadzają się z projektem?
- Rozstawy prętów głównych i strzemion: Czy są zgodne z rysunkami?
- Grubość otuliny betonu: Czy dystanse są prawidłowo rozmieszczone i zapewniają wymaganą otulinę?
- Czystość prętów: Czy stal jest wolna od rdzy, błota, oleju?
- Stabilność szkieletu: Czy zbrojenie jest sztywne i nie przemieści się podczas betonowania?
- Długość zakładów i zakotwień: Czy pręty są połączone na odpowiedniej długości?
Tylko po pozytywnej weryfikacji możemy przystąpić do betonowania.
Jak dostosować zbrojenie do różnych rodzajów słupów?
Zbrojenie pod słup żelbetowy monolityczny standardowe rozwiązanie
W przypadku typowego słupa żelbetowego monolitycznego, zbrojenie pod nim jest standardowym rozwiązaniem, które opiera się na wcześniej omówionych zasadach. Mamy tu do czynienia z ciągłością materiałową i konstrukcyjną słup i fundament są wykonane z tego samego materiału (żelbetu) i współpracują ze sobą jako jeden element. Projektant określa średnice prętów, ich rozstaw, długości zakładów i otulinę, a naszym zadaniem jest precyzyjne wykonanie tego zgodnie z dokumentacją. To najczęściej spotykane i najlepiej poznane rozwiązanie w budownictwie.
Jak wykonać zbrojenie pod ciężki słup stalowy?
Zbrojenie pod ciężki słup stalowy to już bardziej złożone zagadnienie, które bezwzględnie wymaga indywidualnego projektu konstrukcyjnego. Tutaj musimy uwzględnić specyfikę połączenia słupa stalowego z fundamentem żelbetowym, często za pomocą specjalnych kotew i blach podstawy. Koncentracja obciążeń jest zazwyczaj znacznie większa niż w przypadku słupów żelbetowych, co przekłada się na konieczność zastosowania większych średnic prętów, gęstszego zbrojenia i często dodatkowych elementów, takich jak zbrojenie rozpraszające naprężenia. Nie ma tu mowy o standardowych rozwiązaniach każdy przypadek jest unikalny i musi być dokładnie obliczony.
Czy zbrojenie jest konieczne pod słup drewniany lub ogrodzeniowy?
To pytanie często pojawia się w kontekście mniejszych konstrukcji. Otóż, tak, w wielu przypadkach zbrojenie jest konieczne również pod słupy drewniane lub ogrodzeniowe. Zwłaszcza gdy mamy do czynienia z większymi obciążeniami, np. słupami pod taras, wiatę samochodową czy pergolę, gdzie stabilność i sztywność fundamentu są kluczowe. Podobnie jest w przypadku ciężkich ogrodzeń, takich jak murowane czy betonowe. Zbrojenie fundamentu (ławy i stopy pod słupki) zapobiega pękaniu betonu pod wpływem ciężaru ogrodzenia, parcia wiatru i zmiennych warunków gruntowych. Nawet jeśli słup jest drewniany, to fundament, na którym spoczywa, musi być wytrzymały i trwały, a to często oznacza konieczność jego zbrojenia.

Przeczytaj również: Klucz do zbrojenia: Jak wybrać i giąć pręty jak profesjonalista?
Najczęstsze błędy przy zbrojeniu pod słupem i skuteczne sposoby ich unikania
Błąd nr 1: Zbyt mała lub nierówna otulina betonowa
To jeden z najczęściej popełnianych błędów, który ma bardzo poważne konsekwencje. Zbyt mała otulina oznacza, że stal zbrojeniowa jest niedostatecznie chroniona przed wilgocią i tlenem. W efekcie dochodzi do szybkiej korozji stali, co prowadzi do jej osłabienia, pęcznienia i w konsekwencji do pękania betonu. Skraca to drastycznie żywotność konstrukcji i obniża jej nośność. Jak tego uniknąć? Należy bezwzględnie używać atestowanych dystansów (podkładek) z tworzywa sztucznego lub betonu, rozmieszczając je równomiernie i w odpowiedniej liczbie, aby zapewnić wymaganą otulinę ze wszystkich stron zbrojenia.
Błąd nr 2: Niewłaściwy rozstaw strzemion dlaczego zagęszczanie jest tak ważne?
Problem niewłaściwego, zazwyczaj zbyt rzadkiego rozstawu strzemion, może prowadzić do poważnych problemów. Strzemiona stabilizują pręty główne, zapobiegając ich wyboczeniu pod obciążeniem oraz przenoszą siły ścinające. Jeśli są zbyt rzadko rozmieszczone, pręty główne mogą stracić stabilność, a nośność elementu na ścinanie zostanie znacząco obniżona. Jest to szczególnie krytyczne w strefach przypodporowych, gdzie siły ścinające są największe. Dlatego tak ważne jest zagęszczanie strzemion w tych obszarach, zgodnie z wytycznymi projektu (często do ≤ 150 mm).
Błąd nr 3: Za krótki "zakład" przy łączeniu prętów
Zbyt krótki "zakład", czyli długość, na jakiej łączone pręty na siebie zachodzą, to kolejny poważny błąd. Jeśli zakład jest za krótki, nie zostanie zapewniona ciągłość przenoszenia sił między łączonymi prętami. W praktyce oznacza to, że zbrojenie w tym miejscu jest osłabione, co może prowadzić do pęknięć betonu i utraty nośności. Aby tego uniknąć, należy zawsze przestrzegać długości zakładu podanej w projekcie, która zazwyczaj wynosi 40-60-krotność średnicy pręta. To prosta zasada, która ma ogromne znaczenie dla bezpieczeństwa.
Błąd nr 4: Stosowanie stali innej niż w projekcie
Użycie stali o niższej klasie wytrzymałości (np. A-I zamiast A-IIIN) lub o mniejszej średnicy niż przewidziana w projekcie jest niedopuszczalne i stanowi rażące naruszenie zasad bezpieczeństwa. Projektant dokładnie obliczył, jaka stal jest potrzebna do przeniesienia obciążeń. Zastosowanie słabszej stali prowadzi do znaczącego obniżenia nośności elementu, a w konsekwencji do zagrożenia katastrofą budowlaną. Zawsze należy sprawdzić atesty i oznaczenia stali, upewniając się, że jest ona zgodna z dokumentacją.
Błąd nr 5: Przesuwanie się szkieletu podczas betonowania
Podczas betonowania, nacisk świeżego betonu oraz wibracje (zagęszczanie) mogą spowodować przemieszczenie się szkieletu zbrojeniowego. Jeśli zbrojenie znajdzie się w niewłaściwym miejscu, otulina może zostać naruszona, a całe zbrojenie przestanie pracować zgodnie z założeniami projektowymi. Jak temu zapobiec? Należy solidnie wiązać pręty drutem wiązałkowym, stosować odpowiednią liczbę i rozmieszczenie stabilnych dystansów, a w razie potrzeby dodatkowo mocować szkielet do szalunku, aby zapewnić jego stabilność w trakcie całego procesu betonowania.
Błąd nr 6: Zanieczyszczenie prętów zbrojeniowych
Luźna rdza, błoto, olej, farba czy inne zanieczyszczenia na powierzchni prętów zbrojeniowych mają negatywny wpływ na ich przyczepność do betonu. Jeśli przyczepność jest słaba, stal nie będzie współpracować z betonem w sposób zamierzony, co obniży nośność elementu i może prowadzić do pęknięć. Przed betonowaniem pręty muszą być czyste. Rdza nalotowa, która jest mocno związana ze stalą, nie stanowi problemu, ale wszelkie luźne zanieczyszczenia należy bezwzględnie usunąć za pomocą szczotki drucianej lub innych odpowiednich narzędzi.
Błąd nr 7: Brak ciągłości zbrojenia w narożnikach i połączeniach
Ciągłość zbrojenia jest absolutnie kluczowa, zwłaszcza w narożnikach i na skrzyżowaniach elementów konstrukcyjnych. W tych miejscach występują złożone stany naprężeń, a brak ciągłości zbrojenia może prowadzić do koncentracji naprężeń i powstawania pęknięć. Aby zapewnić prawidłową pracę konstrukcji, należy stosować odpowiednio wygięte pręty (np. w kształcie litery L lub U), a także prawidłowe zakłady i kotwienia, ściśle według projektu. To właśnie w tych newralgicznych punktach często dochodzi do zaniedbań, które mogą mieć długofalowe, negatywne skutki dla stabilności całego budynku.
